calpermit
P.O. Box 1892
Sausalito, CA 94966
ph: (415) 595-2019
alt: (707) 725-0899
kevint
WHAT IS REQUIRED FOR A BUILDING PERMIT?
Most cities and counties require the following
BUILDING PLANS
HOW DOES THE PERMIT SERVICE WORK?
The required Building Permit plans and documents reflect the codes and ordinances as shown in the drawings.
Preparing the drawings. This usually requires site visits and detailed measuring. The preliminary drawings are prepared and reviewed for changes or approval.
The building/planning department is contacted for a discussion of the project and clarification of any local ordinances or code compliance issues.
Sometimes a modification permit or design review is required.
Once all the design and code issues have been resolved the final drawings and permit documents are prepared and printed for submittal along with the permit application.
If it is a simple project many city's allow for an over the counter same day approval of the permit.
During the construction the builder may have questions about the design that the design service should be available to resolve.
WHAT DOES THE PERMIT SERVICE COST?
BUDGET PERMIT PLANS (as low as $800 for some plans)
Owner and designer provide all the measuring and sketch information by mail or email and phone conversation.
This service is for a project that does not require a site visit.
Owner Provides:
Calpermit Provides:
AFFORDABLE PERMIT PLANS ($1500 TO $2500)
This is the most common service usually involving an addition or kitchen / bath remodel. The proposed design is within conventional light frame construction standards as provided in Section 2300 of the Calfornia building code. This allows for design of wood frame structures using conventional building practices.
FULL SERVICE DESIGN AND PERMIT PROCESSING ($1500 TO $4500) L IMITED TO 1200 SF Single story addition or new construction. Add $2.00/sq foot for additional square footage.
Two story construction by quote.
Engineering provided by quote.
CALL FOR A FREE CONSULTATION OF YOUR PROJECT.
(415) 595-2019 SF Bay Area
(707) 725-0899 Mendocino Humboldt Counties
Keywords: Building Permit Plans, Building Permit Services, Residential Design, Permit Plans, Drafting, Blueprints, CAD,
Additions, Remodels, New Construction, Garage, House Plans, Building Code, California Building Code, Asbuilt Drawings,
Drafting Plans. Permit Services, Plans, Building Code, Permit Expediting, Building Permit Application, Residential Plans, Additions, Remodels,Garage addition, Kitchen Remodel, Bath Remodel, Remodel,
Drafting Service, CAD, Owner Rep, Permit Plans,
Site Plan, floorplan.

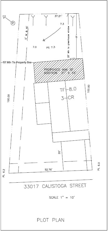
SITE or PLOT PLAN

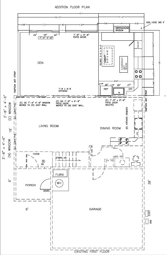
FLOOR PLAN

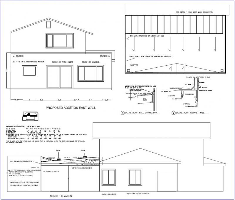
FRAMING DETAILS
Still have questions? Please contact us anytime! We look forward to hearing from you.

Copyright 2009 calpermit. All rights reserved.
calpermit
P.O. Box 1892
Sausalito, CA 94966
ph: (415) 595-2019
alt: (707) 725-0899
kevint